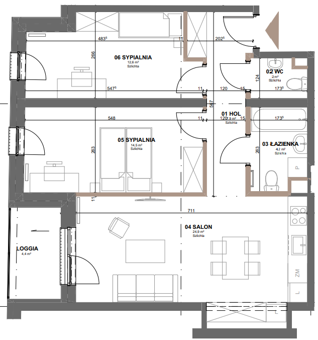
Łączna powierzchnia
66.40 m²
Piętro: 3
3 pokoje
Cena: 703 840 zł
| Cena/m²: 10 600 zł
Rata od — zł/mc
- Hol 7.93 m²
- WC 2.11 m²
- Łazienka 4.39 m²
- Salon 24.96 m²
- Sypialnia 14.35 m²
- Sypialnia 12.66 m²
- Loggia 4.54 m²
Cena miejsca postojowego podziemnego:
50 000 - 52 000 zł
Cena komórki lokatorskiej:
17 080 - 121 380 zł
